Krbová kamna AQUAFLAM ® 7 s výměníkem - černá, automatická regulace
Kód: HSF29-009Detailní popis produktu
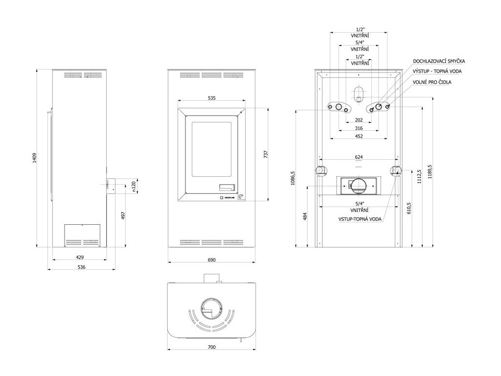
- ovládání externího přívodu vzduchu - 120mm
- sekundární spalování / terciární přívod vzduchu
- dvojitý oplach skla předehřátým sekundárním vzduchem
- 3 bezpečnostní prvky
- přípojky vody na obou stranách
- Bez šamotová technologie - díky absenci šamotové vyzdívky dochází k plošnější předávce tepla do výměníku a zvýšení efektivity ohřevu vody.

AUTOMATICKÁ REGULACE HOŘENÍ
Automatická regulace řídí topný okruh, ve kterém je zdrojem tepla spalovací zařízení Aquaflam, případně další zdroje. Spalovací proces je řízen automaticky vzduchovou klapkou, která spolupracuje s řídící jednotkou. Vyrobené teplo je odváděno do zásobníku teplé užitkové vody (TUV), akumulační nádrže a rozvodu ústředního topení. Regulace obsahuje tři čidla a dále dokáže ovládat tři čerpadla. Díky grafickému displeji získáte okamžitě informaci o teplotách jednotlivých čidel, zda jsou sepnutá čerpadla nebo jiný zdroj tepla. Díky této regulaci ušetříte mnoho času regulováním vložky, zvýšíte svou bezpečnost a snížíte spotřebu paliva.
HLAVNÍ PŘÍNOS
- reguluje průběh hoření
- ovládá celý topný systém
- zajišťuje výraznou úsporu paliva
- graficky znázorňuje teploty čidel, stav čerpadel a klapky
- zabraňuje přetopení topného systému, zavírá klapku a vydává zvukové signály
- zvyšuje Vaši bezpečnost
- prodlužuje životnost spalovací komory
- není nutná montáž klapky (regulace je součást krbové vložky)
- možnost nastavení několika jazyků
- snadné uživatelské ovládání
- snadná instalace a zapojení
- možnost spínání / vypínání jiných zdrojů tepla (elektrický / plynový kotel atd.)
- možnost úpravy nastavení jednotlivých hodnot dle podrobného manuálu
- ovládání až tří čerpadel + třech teplotních čidel
- letní / zimní režim vytápění
Doplňkové parametry
| Kategorie: | Krbová kamna |
|---|---|
| Záruka: | 60 |
| EAN: | 8594155832422 |
| Typ paliva: | Dřevo, Biomasa |
| Rozmezí výkonu: | 7,1 - 10 kW |
| Teplovodní výměník: | S výměníkem |
| Nízkoenergetická: | Ne |
| Spalování: | Terciární (terciální, dvojí), Dvojí |
| Průměr kouřovodu: | 150 mm |
| Umístění: | Do interiéru |
| Výrobce: | HS FLAMINGO |
| Externí přívod vzduchu: | S externím přívodem |
| Materiál: | Ocelová |
| Vývod kouřovodu: | Horní |
| Druh přikládání: | Přední |
| Způsob instalace: | Volně stojící |
| Jmenovitý výkon celkový: | 7 kW |
| Jmenovitý výkon do vody: | 4 kW |
| Rozsah celkového výkonu: | 3 - 10 kW |
| Rozsah celkového výkonu do vody: | 3 - 7 kW |
| Účinnost: | 79,1 % |
| Spotřeba paliva: | 2,06 kg/hod |
| Provozní tah: | 12 Pa |
| Vývod spalin: | 160 mm |
| Délka polen: | 35 cm |
| Výhřevnost: | 60 - 200 m3 |
| Hmotnost: | 165 kg |
| Emise CO (při 13% O2): | 0,1 % |
| Průměrná teplota spalin: | 247 °C |
| Maximální provozní tlak: | 2,5 bar |
| Záruka: | 5 let |
| Typ kamen: | teplovodní - dvouplášťová, konvekční |
| Materiál: | ocelový plech 4 a 6 mm |
| Ochlazovací smyčka: | Ano |
| Objem tepelného výměníku: | 22 l |
| Elektronická regulace: | Ano |
| Palivo: | dřevo, dřevěné brikety |
| Komínová klapka: | Ano |
| Externí přívod vzduchu: | Ano |
| Průměr externího přívodu vzduchu: | 120 mm |
| Přikládání: | přední |
| Odvod spalin: | horní |
| Sekundární spalování: | Ano |
| Terciární přívod vzduchu: | Ano |
| Oplach skla: | Ano |
| Typ skla: | rovné |
| Rozměr skla (Š x V): | 340 x 460 mm |
| Rozměr kamen (Š x V x H): | 700x1409x536 mm |
| Rozměr topeniště (Š x V x H): | 400 x 415 x 340 mm |
| Přepravní rozměr palety: | 850 x 830 mm |
| Barva: | černá |
| Norma: | EN 13240, BlmSchV - Stufe 2, Ekodesign |
| Zák. 201/2012 Sb. od 2018: | Ano |
| Třída energetické účinnosti: | A |
| Výrobce: | HS Flamingo s.r.o. |
| Distributor pro ČR a SR: | HS Flamingo s.r.o. |
| Položka byla vyprodána… | |
HS Flamingo - videoklip společnosti
HS Flamingo - videoklip společnosti
Video katalog - Krbová kamna Aquaflam
Diskuze
Buďte první, kdo napíše příspěvek k této položce.
Pouze registrovaní uživatelé mohou vkládat příspěvky. Prosím přihlaste se nebo se registrujte.
